
Balance 355
Tout en un coup d'œil
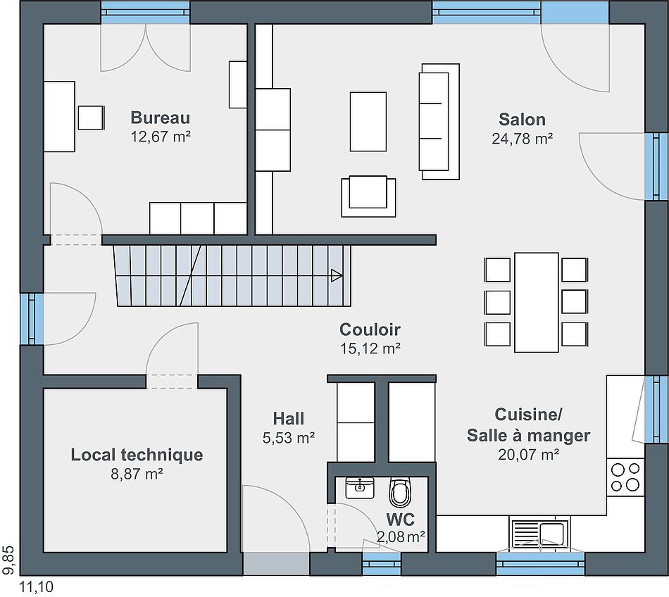
Dimensions extérieures
9,85 x 11,10 m
Surface habitable
159,67 m2
Architecture
rez-de-chaussée avec combles aménagés
Série
Balance — 355
Forme du toit
toit à deux pans
Plus d'informations?
Un logement intemporel à prix promotionnel
La maison promotionnelle Balance séduit par son style classique avec son toit à deux pans et ses murs de combles de 140 cm. Avec son espace de vie d’environ 160 m², elle offre un concept d’habitat harmonieux avec beaucoup d’espace pour la famille, le travail et les loisirs. L’architecture équilibrée allie des éléments traditionnels à un aménagement moderne de l’espace. Des pièces lumineuses et des structures claires garantissent un confort de vie agréable. Grâce à son prix promotionnel attractif, cette maison est la solution idéale pour les maîtres d’ouvrage qui accordent de l’importance à l’espace, à la qualité et à la sécurité de planification.

