
Balance 300
Tout en un coup d'œil
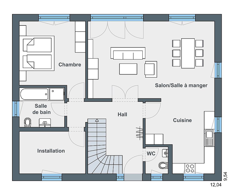
Dimensions extérieures
9,54 x 12,04 m
Surface habitable
159,79 m2
Architecture
rez-de-chaussée avec combles aménagés
Série
Balance — 300
Forme du toit
toit à deux pans
Plus d'informations?
L'espace avec un grand E - pour un plus de joie de vivre
Votre famille, c'est votre bien le plus cher. Vos enfants sont votre priorité, c'est normal et c'est très bien. Vous avez toujours rêvé d'une maison pleine de vie, offrant de préférence son espace à chaque membre de la famille, que ce soit pour jouer, pour s'amuser ou tout simplement pour se retirer.
Grâce à son aménagement spacieux et aux nombreux espaces d'intimité, la variante 300 de la gamme Balance offre des conditions idéales pour une vie de famille harmonieuse avec deux enfants ou plus. Sur une surface habitable de 158 mètres carrés, donnez libre cours à vos projets alternant activité et tranquillité, pour les parents et les enfants.

