
Balance 300
Tout en un coup d'œil
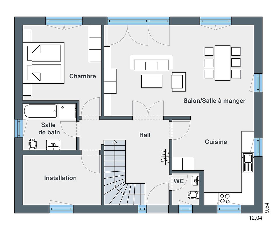
Dimensions extérieures
9,54 x 12,04 m
Surface habitable
159,79 m2
Architecture
rez-de-chaussée avec combles aménagés
Série
Balance — 300
Forme du toit
toit à deux pans
Plus d'informations?
Idéale pour deux personnes
Au départ des enfants, le couple Herse décide de vendre sa maison et d'en construire une nouvelle adaptée à ses nouveaux besoins. Ils ont opté pour une maison classique de la série Balance. Le toit à deux pans sans mur de jambette est couvert de tuiles en béton gris ardoise. Avec sa façade crépie en blanc et ses cadres de fenêtres blancs, la maison d'un étage et demi affiche un style épuré et sobre. La cuisine gagne en espace grâce au bel encorbellement côté sud. La salle à manger et le salon donnent sur la terrasse abritée par une pergola avec toit en verre.

