
Minimaliste et élégante : parfaite pour les couples
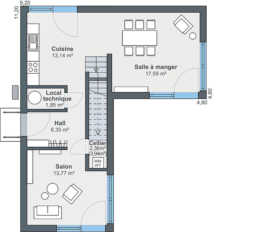
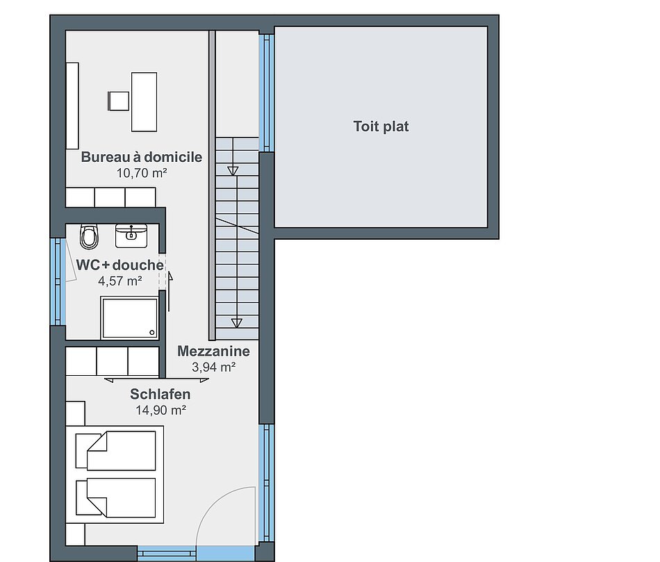
Ce projet de la série OPTION présente une variante à deux étages avec un module d’extension pratique qui peut être placé à côté du coin repas ou, en option, à côté de la cuisine. Comme toutes les maisons de cette série, elle séduit par ses lignes claires et son architecture minimaliste qui se concentre sur l’essentiel. La façade en bois noble dégage une impression de calme et de chaleur, tandis que les fenêtres généreuses créent des espaces baignés de lumière. Parfaite pour les célibataires ou les couples, la maison à deux étages avec module d’extension offre un concept d’espace bien pensé avec une chambre à coucher spacieuse et un bureau à domicile séparé. Le plan d’ensemble fonctionnel et le design clair créent une atmosphère harmonieuse - sans poids superflu, mais en mettant l’accent sur le confort et l’élégance moderne.

