
OPTION Bungalow avec toit plat
Tout en un coup d'œil
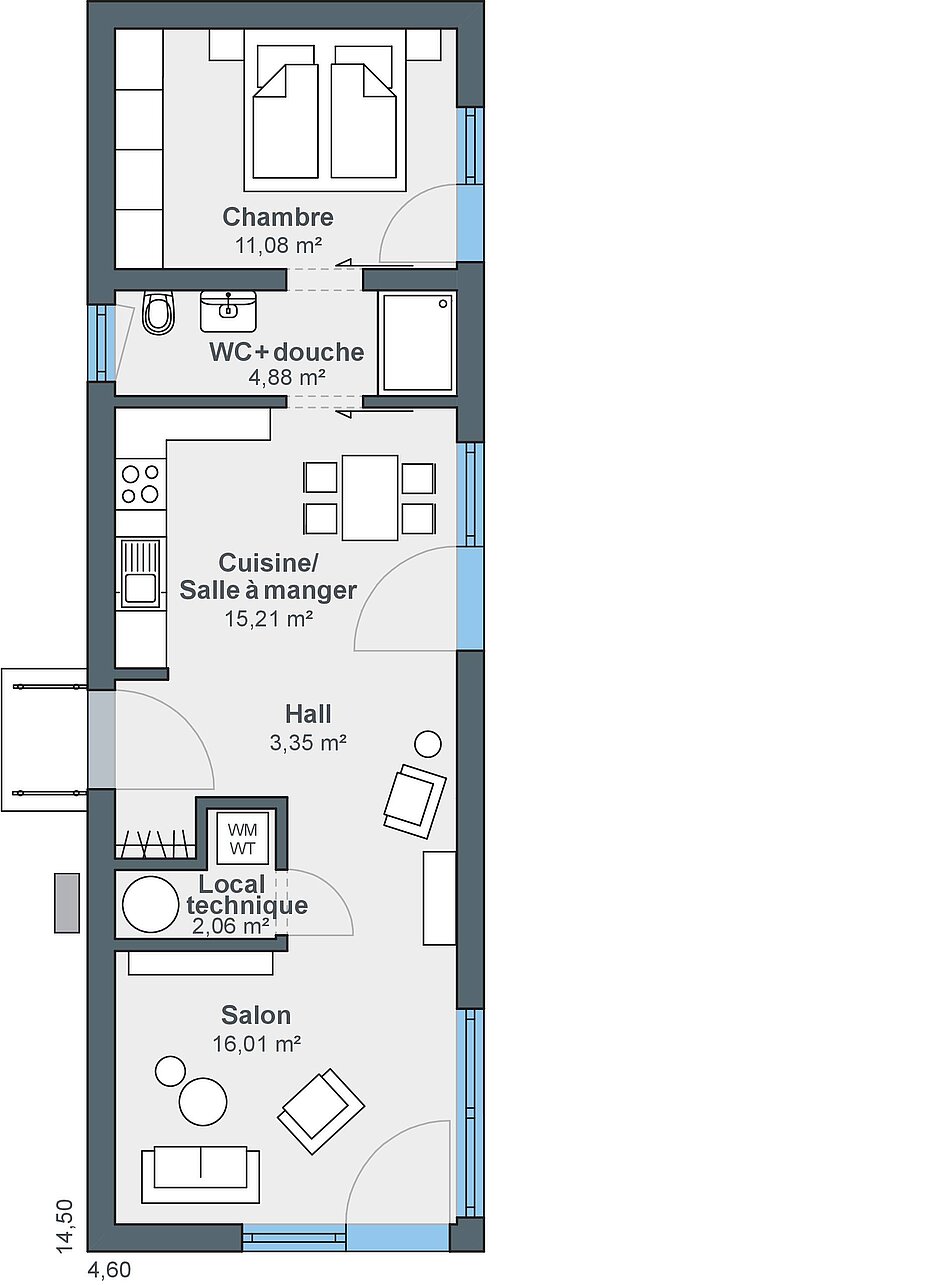
Dimensions extérieures
4,60 x 14,50 m
Surface habitable
52,74 m2
Architecture
maison de plain-pied
style Bauhaus
Série
OPTION — Bungalow avec toit plat
Forme du toit
toit terrasse
Plus d'informations?
Bungalow compact avec toit plat
Le bungalow de la série OPTION séduit par sa longueur imposante de 14,50 mètres et sa surface habitable d’environ 55 m2 – parfait pour les personnes qui souhaitent se concentrer sur l’essentiel. Avec son toit plat et sa façade en crépi blanc, il rappelle le style Bauhaus : sobre, fonctionnel et moderne. La façade avant se présente volontairement de manière discrète, tandis qu’à l’arrière, de généreux éléments de fenêtre laissent entrer beaucoup de lumière naturelle à l’intérieur de la maison. Pour un aspect plus chaleureux, il est possible de choisir le bungalow avec un bardage en bois.
